Umzumbe, South Coast KZN

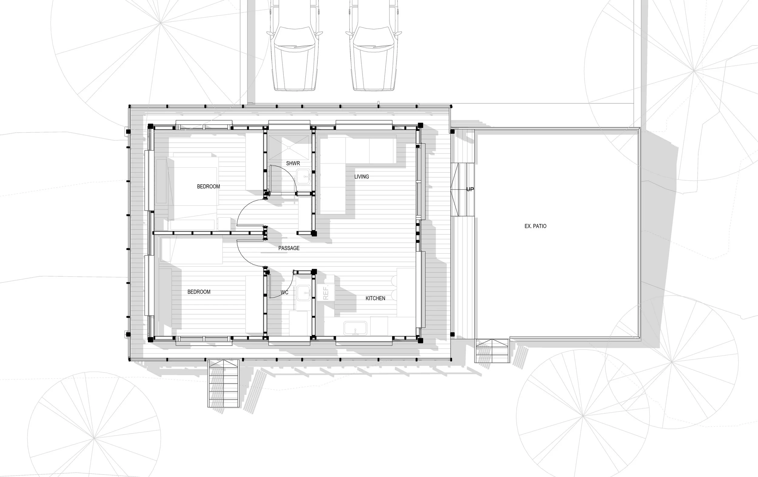
The Tree Cabin is an innovative, fully off-grid, timber frame building made of all natural materials. A bird and whale watcher’s delight, as it sits nested into the indigenous tree canopy with sea views.

Next
Next

House Aaron